





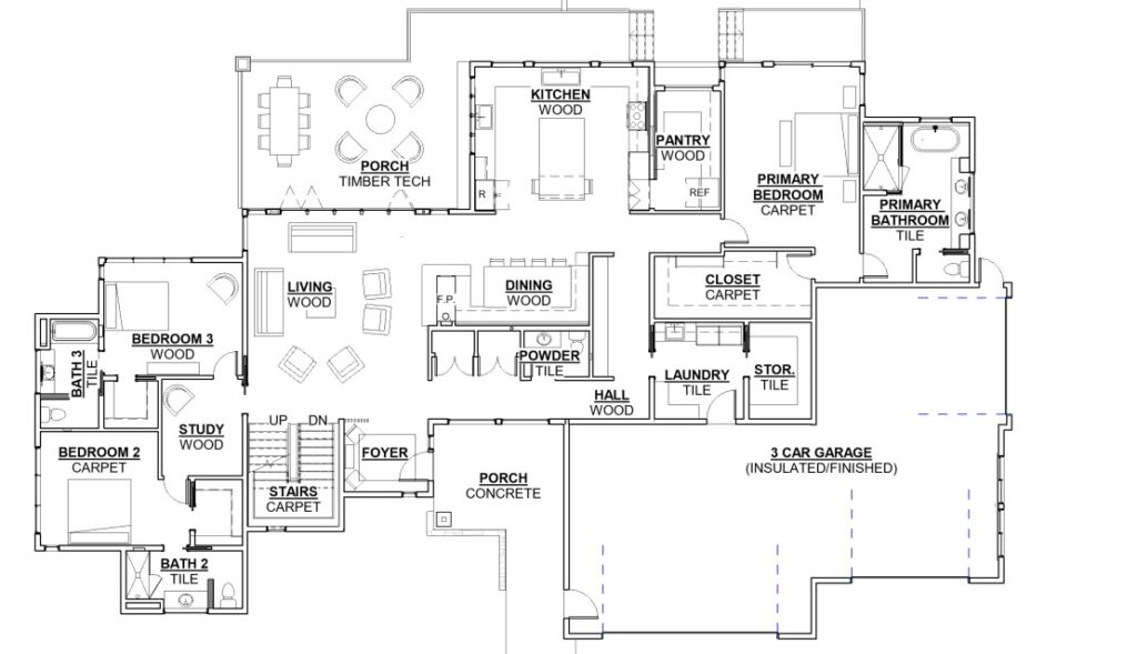
Custom single-family home outside of Boulder, CO. The lot, previously developed, features sweeping flatiron views from every room.
The home is 4 bedroom, 5.5 bathroom, 5,275 sf. It showcases a gourmet kitchen with walk-in pantry, a study, office for two, library, lounge, media room, pool table room, and expansive outdoor porches, patios and pool deck.


