





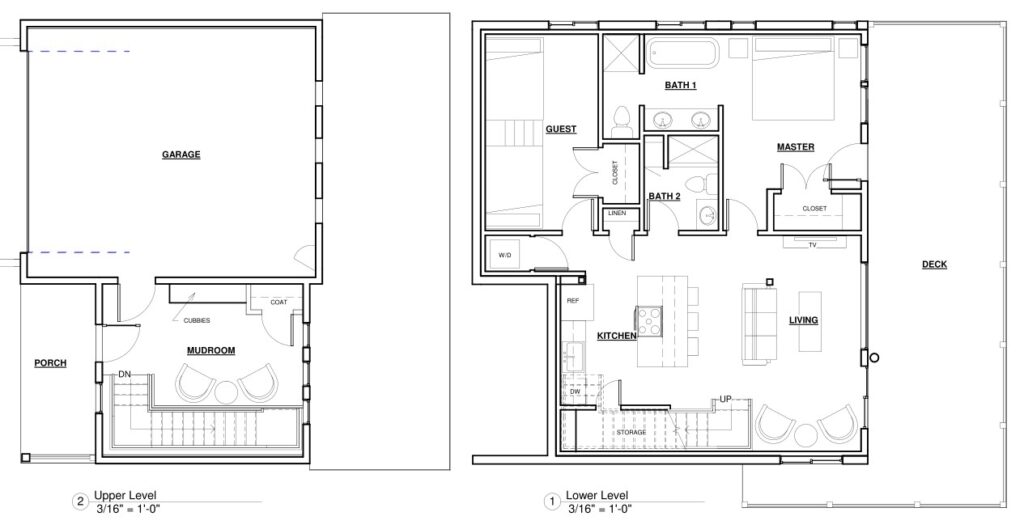
New single-family home on vacant lot in Grand Lake, CO. This home is a vacation home, featuring a compact layout with a primary suite, and double queen bunks in a guest room.
The homeowners wished for a compact layout, and with a steep lot to work with, we created a main floor garage with structural slab, connected to a mudroom and stairs, with living space below. The main areas of the home are attached to a large lower deck with views overlooking the lake.
The home is 2 bedroom, 2 bedroom, 1,271 sf.
