


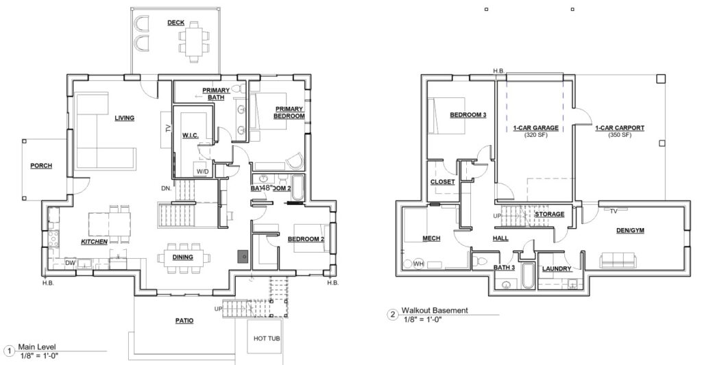
New single-family residence above Lyons, CO on vacant lot (previous fire loss). This family home features energy efficient walls constructed of ICF’s (insulated concrete forms). The house is set into the hillsdie with a garage and beneath, and main living space above. The home features high ceilings with lots of natural light, sweeping mountain views, and several outdoor decks, and patios to enjoy the outdoors.
The home is 3 bedrooms, 3 bathrooms, and 2,752 sf.

