

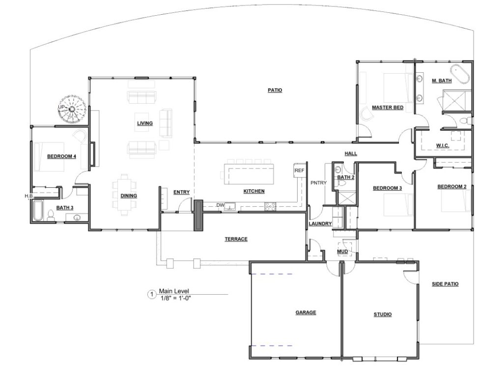
This home design was for a lot where the previous home was lost to the Marshall fire in Boulder County, CO. The homeowner’s desired for their new home to be configured to single-story living to age in place, while also offering ample rooms for guests and family gatherings. The home was designed around a central patio, allowing all rooms easy access to the outdoors and expansive flatiron views.
By using the previous home site location, and not exceeding the previous square footage, we were able approve the new design without going through the County Site Plan Review process, saving time and money. The home is 4 bedroom, 3 bath, and 3,190 sf. It features a garage, art studio, roof deck, and extensive main floor patio.
The owners did not choose to move forward with construction of this residence.



