

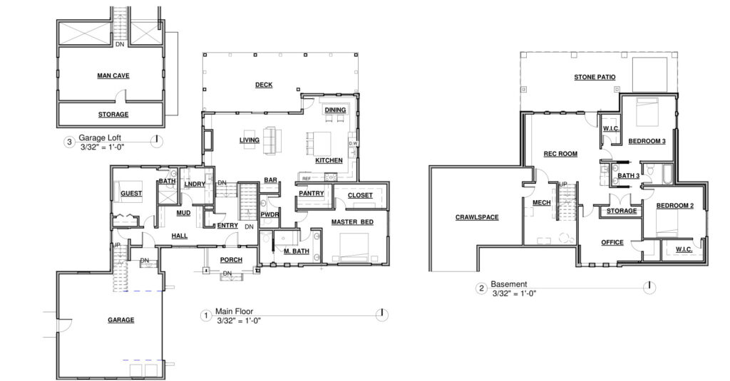
New construction single-family home for a growing family in Tabernash, CO. The family desired for the main living areas to be located on the upper floor, to capture views from their covered porch. We accommodated this by creating an intermediate level connecting the garage, mudroom, guest room, and laundry to an entryway with a short flight of stairs to both the upper level and the basement.
The home is 4 bed, 3.5 bath, and 3,455 sf. It features an additional office, family room, large covered porch, and a man cave above the garage accessed via a secret staircase.





